Listed by Bill Somerville of Three West,LLC
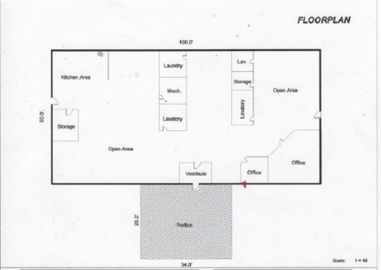
Boyne City office building with 5,000 sq. ft. available to purchase or lease. Located in a business park setting close to M-75. On a 2 acre parcel. Includes three restrooms, full kitchen, washer/dryer hookup, and covered driveway entrance. LED lighting and fenced rear yard area with wooded setting. Works well for office, medical, daycare, church, community center or similar uses. Regional Commercial/Industrial District zoning allows for variety of other uses including retail and bank or restaurant with drive-through. A/C replaced in May 2025.

Listing Tools

Property Details of 615 Beardsley Street

Property Details

Interior Features

Utilities and Appliances

Map Location

"Based on information submitted to Northern Michigan MLS as of November 10, 2025 5:14 PM EST . All data is deemed reliable but is not guaranteed accurate by the MLS. All information should be independently reviewed and verified for accuracy. IDX information is provided exclusively for consumers’ personal, noncommercial use and may not be used for any purpose other than to identify prospective properties consumers may be interested in purchasing."

Hi there! How can we help you?

Contact us using the form below or give us a call.

Send Us A Message:

I agree to receive marketing and customer service calls and text messages from Harbor Sotheby's International Realty. To opt out, you can reply 'stop' at any time or click the unsubscribe link in the emails. Consent is not a condition of purchase. Msg/data rates may apply. Msg frequency varies. Privacy Policy.

Do not fill in this field:

This site is protected by reCAPTCHA and the Google Privacy Policy and Terms of Service apply.

Hi there! How can we help you?

Contact us using the form below or give us a call.

Send Us A Message:

Do not fill in this field:

This site is protected by reCAPTCHA and the Google Privacy Policy and Terms of Service apply.

Hi there! How can we help you?

Contact us using the form below or give us a call.

Send Us A Message:

Do not fill in this field:

This site is protected by reCAPTCHA and the Google Privacy Policy and Terms of Service apply.

Do not fill in this field:

This site is protected by reCAPTCHA and the Google Privacy Policy and Terms of Service apply.

Do not fill in this field:

This site is protected by reCAPTCHA and the Google Privacy Policy and Terms of Service apply.

Do not fill in this field:

This site is protected by reCAPTCHA and the Google Privacy Policy and Terms of Service apply.

$

Do not fill in this field:

This site is protected by reCAPTCHA and the Google Privacy Policy and Terms of Service apply.