Listed by Heather Robinson-Sleutel of Bay North - Beaver Island
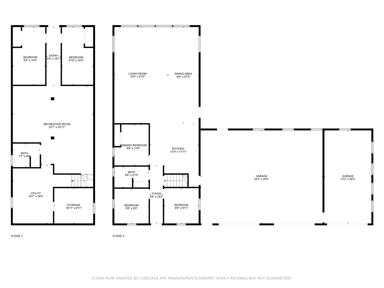
A very convenient location, minutes from the ferry! Zoned Harbor District, this property can be used for business and/or residential. Set up to be a wonderful in-town rental property currently, this 5 bed, 2 bath home could make a wonderful year round residence as well. The open kitchen/dining/living area has plenty of space for gatherings with an elevated view of the Harbor from inside, or out on the deck. The owners have made many improvements over the past few years, with a new roof installed in May 2025. Three of the bedrooms are on the main floor, along with a full bathroom. The lower level is nicely finished with a family room, two more bedrooms, bathroom, and unfinished storage and laundry areas. The three stall garage provides plenty of room for your toys! With .68 acres you will have plenty of space outside too. This is a wonderful opportunity for someone looking for a unique in-town island property!

Listing Tools

Property Details of 26330 Back Highway

Property Details

Interior Features

Utilities and Appliances

Map Location

"Based on information submitted to Northern Michigan MLS as of March 12, 2026 9:44 PM EDT . All data is deemed reliable but is not guaranteed accurate by the MLS. All information should be independently reviewed and verified for accuracy. IDX information is provided exclusively for consumers’ personal, noncommercial use and may not be used for any purpose other than to identify prospective properties consumers may be interested in purchasing."

Hi there! How can we help you?

Contact us using the form below or give us a call.

Send Us A Message:

I agree to receive marketing and customer service calls and text messages from Harbor Sotheby's International Realty. To opt out, you can reply 'stop' at any time or click the unsubscribe link in the emails. Consent is not a condition of purchase. Msg/data rates may apply. Msg frequency varies. Privacy Policy.

Do not fill in this field:

This site is protected by reCAPTCHA and the Google Privacy Policy and Terms of Service apply.

Hi there! How can we help you?

Contact us using the form below or give us a call.

Send Us A Message:

Do not fill in this field:

This site is protected by reCAPTCHA and the Google Privacy Policy and Terms of Service apply.

Hi there! How can we help you?

Contact us using the form below or give us a call.

Send Us A Message:

Do not fill in this field:

This site is protected by reCAPTCHA and the Google Privacy Policy and Terms of Service apply.

Do not fill in this field:

This site is protected by reCAPTCHA and the Google Privacy Policy and Terms of Service apply.

Do not fill in this field:

This site is protected by reCAPTCHA and the Google Privacy Policy and Terms of Service apply.

Do not fill in this field:

This site is protected by reCAPTCHA and the Google Privacy Policy and Terms of Service apply.

$

Do not fill in this field:

This site is protected by reCAPTCHA and the Google Privacy Policy and Terms of Service apply.